Chybová správa

Strict warning: Only variables should be passed by reference v include() (riadok 8 z /home/rivierapark/byty.rivierapark.sk/sites/all/themes/mytheme/templates/vocabulary--domy.tpl.php).

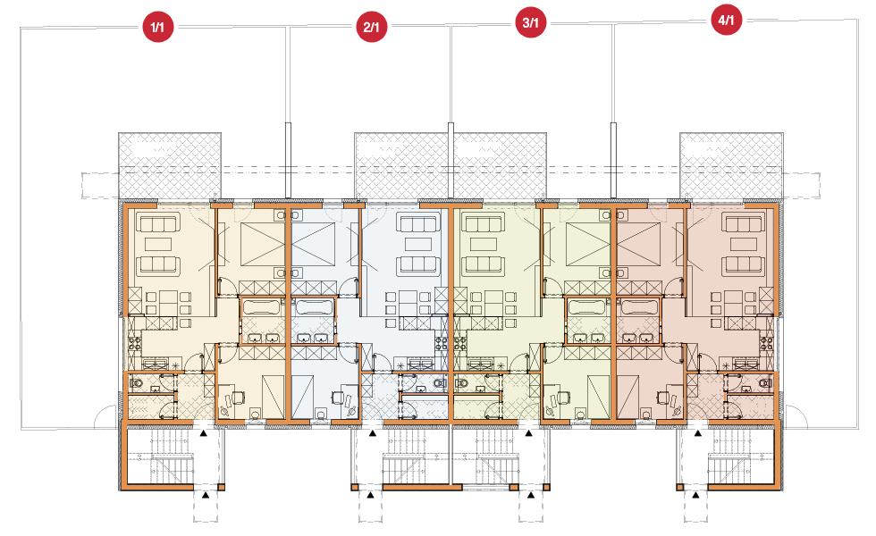
prízemie

BYT 1/1 BYT 2/1 BYT 3/1 BYT 4/1

Kontakt

Riviera Park
attracktive apartments
Lokalita: Hamuliakovo
Email: info@bondreality.sk
Tel.č.: Tel.: +421 2 595 33 333
Mobil: +421 905 333 333

Zodpovedný predajca:
Niejadlik Michal
Olympos trade s.r.o.
investment corporation